DOUBLE QUEEN PLOT IN APOKORONAS_4106 M2_LICENSE SEQURED


# 2079

DOUBLE QUEEN PLOT IN APOKORONAS 4106 M2 LICENSE SEQURED

250,000€
9
9
9
DOUBLE QUEEN PLOT IN APOKORONAS 4106 M2 LICENSE SEQURED

land_type Agricultural
town_planning_zone Agricultural
plot_area_amount 4,107m²

Land Type
Agricultural
Town Planning Zone
Agricultural
Lot Size
4,107m²

Property Description

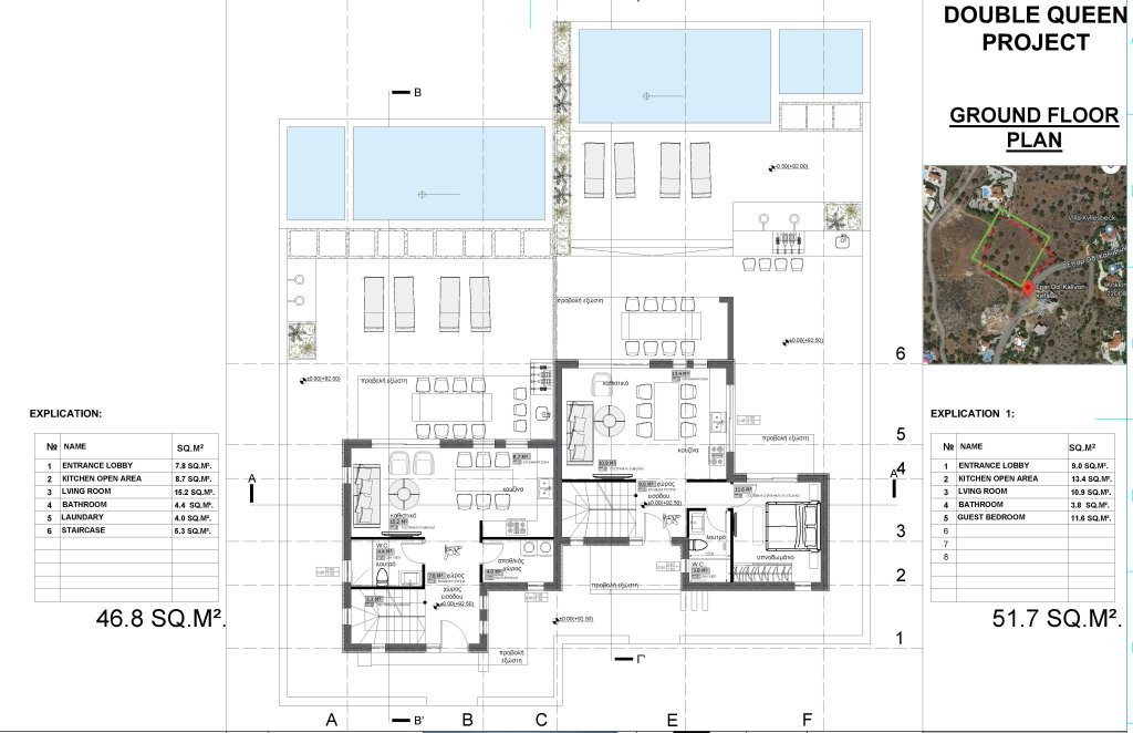
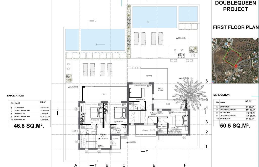
This stunning plot of land located in the charming village of Kokkino Horio. This 4106m2 piece of land is licensed for two luxurious townhouses, each with their own personal pool. With a total construction area of 197 m2 and a total pool construction area of 80 m2, this is the perfect opportunity to create your dream home in paradise.
Located on a 30m road frontage, this plot boasts a slight slope towards the sea, offering spectacular views from both the ground floor and the next floor. Imagine waking up to the gentle sounds of the sea and basking in the warm Mediterranean sun while enjoying breathtaking views of the surrounding landscape.
Don't miss out on the opportunity to own a piece of paradise in Kokkino Horio.
Contact us today to schedule a viewing and start living your best life.
Additional transaction costs which are not included in the listing price:
Real Estate Transfer Tax 3.09%
Notary services 1.5%
Other expenses 1.5%

Property Details

Details

Land Type: Agricultural
Town Planning Zone: Agricultural
Building Coverage (%): 10%
Building Density (%): 4%
Height: 7.50m
Ideal For: Villa Construction
Licensed For: Two Townhouse, Each With Private Pool

Areas

Lot Size: 4,107m²

Main Features

Corner Plot:
Sea View:
Mountain View:

Property Enquiry